



eco-park for research
Cypex Medical Office &Laboratory Complex, Dundee
Client: Dundee Medipark
The site, near Ninewells hospital, is a sloping greenfield site, which benefits from excellent views to the south and west towards the River Tay and the outskirts of Dundee and Perth.
The objective of the study was to ascertain the potential viability and cost of developing the site for two pre-identified using a shared access, and also, to ascertain the impact of the overall development from engineering construction and landscape character view points. Both potential developers were occupying rented accommodation within the Dundee Technology Park, and wanted to have their own premises.
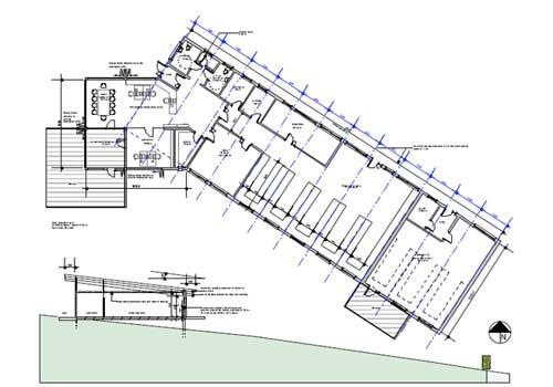
Gaia worked closely with each potential user to assess and develop their requirements. Three alternative site layout options were prepared and reviewed, in conjunction with an alternative building layout for one of the users developments.
- These were assessed on the following criteria:
- Consideration of overall landscape character
- Minimisation of importing of infill materials
- Optimisation of site development cost
The development was novated in 2005 to the developer and went to full Planning and detail design in 2005 and was completed on site in 2006.